李坤新作 | 魔都旧改设计师淘回旧物,在小县城填满出放空之地

“有时白云起,天际自舒卷。”

image.png

放空山居

闲逛到黄山脚下的古徽州之一的绩溪县城

发现老李又开辟了一处新的「放空之地」

和隐于野的放空山居略不同,这次的空间位于绩溪县城

不管是想隐于市,还是隐于野

在这片世外桃源里都能够「猫」上一整天

 

accc0b8295a8b88189e77fd0a2af41a0.jpg

f7da63f87e2319208e3028f88e884ca7.jpg

6年前创立了“放空山居”,始终从未停止对这座小城的探索。

“跑过许多地方,却没想到被绩溪留了下来”老李很是感慨。

e2c71b1805dbf96ca555e3da15eeceea.png

af0cde171b40999c8edb4021dbf29b85.jpg

放空山居

image.png

为这间房子设计的初始定位,是一个可以在朋友间共享的起居室,让更多的人有机会体验绩溪小城生活,感受山居放空生活。出于打造共享起居室的动机,做了开放式厨房,把原有的露台和阳台全都收回室内空间来,增加空间的开放性,让三五好友在这个空间里可以更好的感受放空的感觉~

01b0f87f102fec74635765b0163224d5.jpg

在有壁炉的对面打造整面搁板书架,围着壁炉布置了舒适的座位,使之成为空间的核心。餐厅的区域有特别棒的山景,所以这是一个多功能的空间,窗边堆满了伴随多年的书籍,在聚会的时候用作餐厅,平时也可以在这里办公看景,观云听雨。

5bf4a424a3081b92d477d1423ec85063.jpgddeda6a7da88b802a1567a1c944781d5.jpg

ffcedd2fea92db1e1f487f64f118e747.jpg

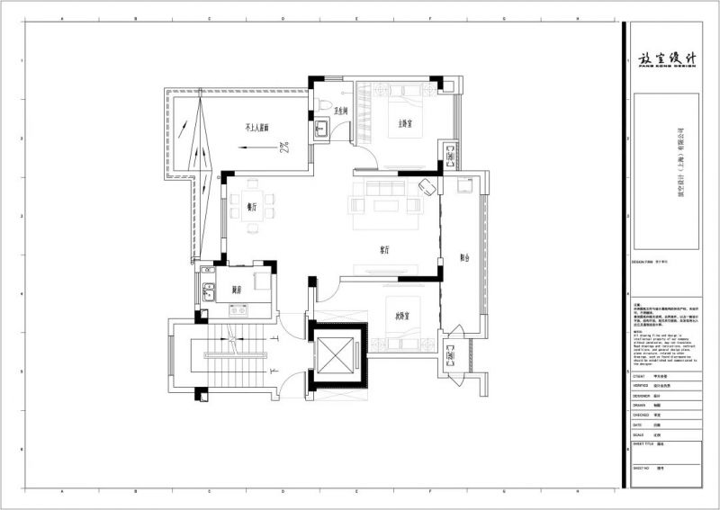
图片原始户型图

 image.png

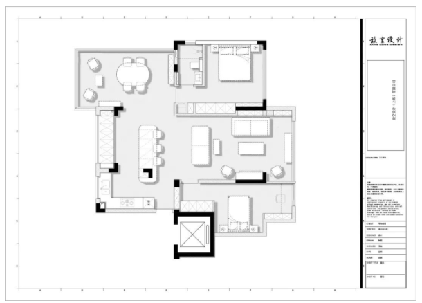
改造后的户型图

 

f2a96a8ed43035a92475353eeab9c0f2.jpg

从上海老洋房里面淘来的壁炉

表面经过清洗修补,保留壁炉木架的斑驳历史感

营造一个温暖的休息区域

特别是夜晚台灯亮起时

bfbeb0b54922a0ac75a467f88ffbba01.jpg

5ae0c5c80110e858b18bdcd9443dc267.jpg

7bbc4b88bddc406d762fdb701e253c4c.jpg

63ede9a600ce806d3bdd311b6c254186.jpg

74bf86edadc598858bb9f94dff6ddcbc.jpg

雨后夜下

团团云雾笼罩的青山,可不就是一幅流动的水墨画

image.png

夸张造型的人物油画、土耳其背回来的地毯,

多块国内淘的中国元素老旧地毯,旧家具共同营造出放空之地

302e86a989487be674da518abac7e023.jpg

小城里一方舒适的空间和满架书籍,更是能让思维自由发散的一方天地。

3d829ef7d1ac31d18ce50904cb1f62e6.jpg

9857b5091a61810fe8555d2a60167cc3.jpg

推窗可见山上的一草一木

团团晨雾和树木的呼吸

远处连绵的青山

都成为了窗里最自然的装饰

 

01fe112c59dc0ab8aa42f2d262539e7d.jpgbc1ab78fb4d1198c1c97e5ab5f75635b.jpg

8dc516e6e48cede3e111c93634f39d32.jpg

淘回来的老餐桌做了除漆上油处理,保留了岁月的痕迹

image.png

多用途的餐厅区域,朝东的方向,早起便可见日出从群山后缓缓而上。

53b548947edeb725501c86cf6c251e41.jpg

主理人李坤

 

00b12a2122aa40a0a7c5a9357ed461a5.jpgc676462e0f390a67336483f5aad81500.jpg

 

厨房吧台区域极不错,在这里简单的办公,用餐或者和朋友小酌都非常的合适。

 image.png


亦或当做客厅和厨房的隔断划分区域

35430665ce24d7ca50c3663dbc194a91.jpg

厨房用了比较大胆的配色

印度绿的台面配上黑色手工釉面砖以及绿色主题油画

 142338562e83a4f57e04b312b7ace275.jpg

从荷花塘里带回家的荷花荷叶

让三千晴空周璇和我们的达哥扦插出各种意境

这荷花配上黑色瓷砖也是绝了

 

eb84a3ae3ffd4166a6a7993bbacbcb9f.jpg

7aab630919bf2181f292331dd95b8ee9.jpg

67173b7b963a925f54edc69c0570ce90.jpg

这个空间堆满了老李从各个地方淘回来的各种古董老货,还有塞在书架上零零碎碎的小玩意,多的是七七八八,收回来的“破烂”。

22f5613dd3f41740e4619e63b3be1b87.jpg

简单的花盆,未完的油画,毛坯的木雕

不是那种完美,但胜似完美

8c4d8cfa3d4af1e0da59148a28631907.jpg

1a25a7a5ca77672964bf271b04b1c5a6.jpg

每一件物件都有自己的故事,从何而来,为什么一眼相中,老李总能娓娓道来。这些破“破烂”搭配在一起,便各自呈现出不同的奇妙风格。

image.png

图片我们很难定义这样的风格该如何归类,或许更应该是一种独创的全新风格。带有时间印记的旧物,让家不再只是一个普普通通的居住空间,而是为家带来一份岁月的温度和生活中的烟火气。

 77ff3ae4afffd7bb70121252362b57c3.jpgef45f216bfafd8f67d6ab4a8bde7bfd5.jpg

老李对于旧物的喜爱已经刻到了骨子里,所以不仅限于这个空间,在放空山居和他设计的住宅里随处是它们的影子。

 21006e32c7a917b780ff7a780cc60d91.jpg

70年代的烟灰缸和修复的台灯

 8fd5c829eec2f23e09abaf8015a90000.jpg41625c35ccbdb6dbc937199bcb5affca.jpg

于是一件一件脏破的旧物又在新的空间重新焕发生命力。在新与旧之间的这种巧妙“融合”中,让房子既保留了历史的印记,又有现代住宅的舒适感。

eb49a0d32b07a48a431c3792a3c90fc0.jpg

东边的主卧室有一面墙的老CD,是共享的客卧。在都市生活久了,当觉得自己是一个没有“生活”的人时,便可以来这个小城的人烟处放空,去早餐店吃热气咕噜沸腾的当地美食,阿婆叫卖着自己种的小菜,还沾着清晨的露珠......

2e004620be6bf0974f4a38c7b2371c77.jpg82e554701d44f66b7919ac7615e57c39.jpg

f475cd532bb25642daa86f36225b8c22.jpg

东边主卧

6d44ceb55951d98afc681834f23394d7.jpg

 

9568dc747d29b09262d628d5e8d59ea9.jpg

西边次卧

当一头扎进人烟处,才感觉就像一头扎进了“生活”,熙熙攘攘的人群,叫卖声此起彼伏,生鸡活鸭、鲜鱼水菜,碧绿的黄瓜,通红的辣椒,热热闹闹,挨挨挤挤,无序却充满活力,这些汪曾祺笔下的生之乐趣,正是生活的底色,或许这就是这座小城的魅力所在。

 5144c47d5227a6e6d1e767f1a4217e6e.jpg

94d4a84ae2b7696792bf74286db237bb.jpg

绩溪县城

趁着初秋温柔

正是吃茶、静享秋日的好时候

寻一间小城的房子

便可以做一个远离城市喧嚣的美梦

 7cc126f7cc94a4a9796508b6727c4b21.jpg


等到夜幕降临

窝在床上看一部电影

或者静静欣赏窗外的繁星点点

就是这个初秋夜晚给自己最好的奖励了...

 

ABOUT US

小红书 @放空FANGKONG DESIGN@放空山居 @放空和集

微博 @放空设计 @放空生活

53056dc44a13368642bae40dfcbc4ec9.jpg

放空设计是城市存量资产改造领域的先行者,专注于老旧建筑改造。我们在小众高端私人度假住宅、精品民宿度假酒店,以及其他存量商业改造领域深耕十七年。我们力求探索自然和艺术的糅合,倡导可持续发展的生活方式。

dff412c7d338fd35c4d74a850d38b622.jpg

每一座房子都是一部电影

镌刻在屋檐墙角的特殊符号

一家人的生活故事,在楼上楼下上演

...

在呼吸间感受建筑性格


分享到:

相关推荐

评论 抢沙发

评论前必须登录!

 

精彩评论