![]()
在追寻理想的路上
收获理想的生活
On the path of seeking dream
I have gained dream life
家,是心之所向,亦是素履以往的所在。告别生活多年的故乡,如何以家的名义,在万象天地间寻找一个容身之所,点亮属于自己的温暖灯光?
![]()
深圳是一座充满人文关怀与年轻活力的城市,本案位于深圳万科臻湾汇,资深室内设计师夏景春以“家”为撬点,为居住者安排了一场回归生活本真的邂逅,将自然、艺术以及随性自在的居住体验无限延展在148㎡复式空间之中。
01
LIVING ROOM
客厅
![]()
理想的住宅无需奢华繁复的堆砌,而是希望呈现美好生活的本来样貌。
![]()
客厅是具备场域力量的,在推开门的瞬间,家的亲密与柔情将人环绕于怀,一如书籍般成为精神世界的避难所,安放疲惫的灵魂,紧绷的心绪得以在归处缓缓释放。
客厅、餐厨、办公、休闲区域一体开放,一楼空间由此被赋予通透豁达的气质语言。灰、白与深棕将客厅渲染上温暖柔和的底色,生活之美可随时由眼入心。
![]()
家的眷恋在此流动,索性放弃一切突兀繁复的修饰,生于自然的理石纹路会为空间带来故事,桌边的盈盈绿植,会让我们重新感受生命的本意。
![]()
02
DINING ROOM
餐厨
![]()
人生不过76000顿饭。
汤饭果蔬,粥饮小食,是再寻常不过的一日三餐,更是黄昏归家时最具体的人间烟火。
![]()
厨房是盛产幸福的地方,牵系最温暖的记忆,色香味俱全的生活从这里开启。
![]()
餐厨与客厅相连,满足亲友相聚互动,共享烹饪之趣。原本的餐区以西厨岛台代替,串联备餐、烹饪、就餐、陪伴,动线丝滑,让空间功能不再拘泥于用餐本身。
![]()
橙棕色餐椅环抱厨房空间的棱角,大片镜面墙设计,拉长进深有限空间,也将生活的温度清晰倒映。
![]()
03
OFFICE DISTRICT
办公区
![]()
空间有界,生活无界。在没有明确的功能分界线时,工作区可以是舒适的办公区域,也可以时令人侃侃而谈的社交场所,更可能是放飞想象的白日梦剧场。
![]()
光流淌于桌面,窗边影影绰绰的龟背竹随风摇曳,一种闲适惬意的情绪涌上心头。
![]()
境随心变。在多功能办公区,乌色实木工作台和现代造型皮椅相得益彰,墙面则改造为书架形式,陈列着凸显整体空间质感的艺术装置。
![]()
而在需要休憩或独处空间时,右转即可进入另一方小天地,书房整体采用米色基调,缀以松软柔和的奶油色躺椅,用原木、植物构建出清爽有序的冥想世界。
![]()
![]()
04
BEDROOM
卧室
![]()
全员内卷的时代,
好好休息实在太过奢侈。
![]()
移步上楼,躲进这个决定一天开始与结束的地方,将春夏秋冬的喧嚣抛却脑后。此时此刻,不设防备的自我褪去浮华,唯有清风吹动纱帘的飘忽,相伴入眠。
![]()
卧室以静谧的水泥灰色为基调,脚感舒适的原木地板及游走于空间的柔和灯光,不疾不徐地奏响无声夜曲,引领居者悠然舒适度过“无用”时光。
![]()
巧妙的玻璃房设计,洞察居者心向往之的浪漫主义,改善小户型复式空间带来的沉闷、昏暗和视线拥堵,一切美好生活,睁眼即见。
![]()
05
CLOAKROOM
衣帽间
![]()
装得下T台梦想的,不只有高级成衣品牌的试衣间,还有你的衣帽间。
内嵌于二楼走廊尽头,为“名模show”的美梦延伸绝佳舞台空间。衣物收纳、饰品陈列、物件取用,功能间的平衡与秩序,在小小角落中悄然呈现。
![]()
06
BATHROOM
卫浴
![]()
以线条勾勒空间礼序,以黑白演绎洁净设计,家用卫生空间的既定印象,就此更迭。
![]()
主客卫入目即是极简大气的黑白色系,充足的收纳,通透的空间,让一切井然有序。简洁的装饰和舒适的照明,在满足私密需求的同时,营造宁静放松的氛围。
![]()
![]()
归身亦归心
方隅之间,自成天地。在本案的营造中,设计师将业主的居住理想,物质和精神富足积淀而成的品味修养,以及对家的情感和对租户的善意与祝福幻化成无数闪光的生活片段,在这森罗万象里,穿透夜的浓雾,拥抱每个风尘仆仆的归家人。
![]()
- 项目信息 -
Project Information
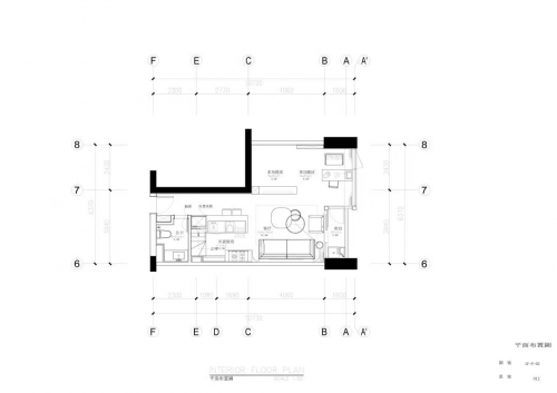
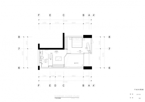
项目户型:复式公寓
项目面积:148㎡
设计风格:现代轻奢
设计团队: 意象空间设计
主案设计:夏景春
项目地址:深圳 · 万科臻湾汇
![]()
![]()
平面布局图
| 关于设计师 |
![]()
夏景春
深圳市意象空间设计有限公司创始人&设计总监
从业16年,2009年毕业于湖南科技大学建筑与艺术设计学院,2023年5月清华大学美术学院环境空间艺术高研班研修,主张“空间有限∞创意无限”,注重“将设计融于人性,将空间赋予情境”。
获奖情况
· 2023年作品【曦城别墅】荣获红棉奖最美空间设计奖
· 2021年深圳市第十一届职工技术创新运动会暨2021年深圳技能大赛——室内装饰设计职业技能竞赛三等奖
• 2020年作品【先生的猫】荣获第十二届中国照明应用设计大赛全国总决赛家居空间“银奖”
• 2020 中国新厨房设计大赛“最佳创新设计奖”
• 2020 作品【先生的猫】中信红树湾获第五届“包豪斯奖”国际设计大赛专业组环境空间类“铜奖”
• 2019 作品【梦想之家】获“寻星奖|预见·未来家”中国未来空间设计概念大赛全国28强
• 2018 作品【拾光】香山美墅荣获第十届中国照明应用设计大赛全国总决赛家居空间“铜奖”
• 2017 作品【御墅有道·云水禅心】荣获第九届中国照明应用设计大赛全国总决赛办公空间“银奖”
精彩评论