![]()
我们深处在一个复杂的时代,简单生活是我们应对这个丰富多彩世界的一种方式。设计,亦是如此。
设计应回归生活的本质,以居住的舒适度为最终考量。从实际使用和功能出发,感性同时加入理性的推演,运用简单质朴的表现手法,细心雕琢每个空间,逐渐打磨出家的模样。
![]()
![]()
![]()
整体空间以白色作为主色调,搭配浅色系原木色温润空间的调性。整个空间层次分明,优雅白净,又沉稳又内敛,简约而不简单,整体大气而流畅。
![]()
点缀色调—粉、蓝、黄成为整个空间的点睛之笔。
负二层休闲空间
Negative?one floor leisure space
![]()
>>> 负二层平面图 <<<
![]()
>>> 会客区效果图 <<<
大面的落地玻璃窗,将室外之景引入室内。山水与原木元素与外界相呼应,利用户外的风景丰富室内色彩。
光线照进玻璃窗,穿透纱帘,落在浅灰色的沙发、地毯上,彰显出空间的质感。橙色的抱枕活跃整个空间的氛围。简约线条的茶、边几,让空间更加轻盈通透。
![]()
>>> 冷餐区效果图 <<<
大气简约的橱柜,收敛起空间的繁复,打造简单干净的高雅感。独特的岛台设计,融合业主的审美情绪,提升整个空间的格调。
![]()
>>> 茶室效果图 <<<
通过客厅走进茶室,独特纹理与质感的地面石材与木材的相融合,奠定整个空间的基调。现代而具有东方韵味的家具更是为这个家添上一抹不一样的韵味。
负一层儿童娱乐空间
Children's entertainment space
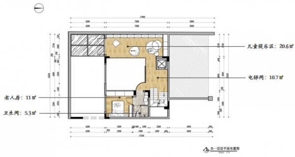
![]()
>>> 负一层空间平面图?<<<
![]()
>>> 儿童娱乐区效果图 <<<
一层客餐厅生活空间
Guest restaurant
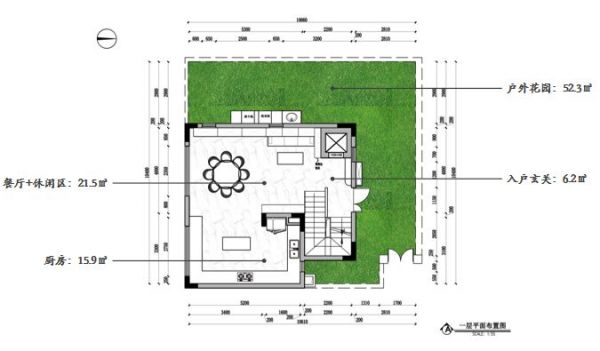
![]()
>>> 一层平面图 <<<
![]()
>>> 一层客餐厅效果图 <<<
黄蓝色调的碰撞在浅色基调的家中,活跃而不突兀,并与整个空间相呼应。高端定制的木色柜、金属线条的茶几,赋予空间一种轻奢格调。
![]()
![]()
>>> 一层客餐厅效果图 <<<
一层采用开放性布局,空间与空间之间协调融合,又不失各自的个性。大面积的采光设计,增加整体空间的明亮度,丰富空间层次。
二层儿童空间
Children bedroom
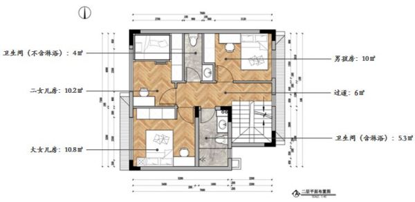
![]()
>>> 二层平面图?<<<
![]()
>>> 大女儿房效果图 <<<
大女儿房,以清新而淡雅的粉色系为主调。米色打底,粉色家具的装饰,恰似小女孩内心永恒不变的少女心,可爱而柔软。
![]()
>>> 男孩房效果图 <<<
而男孩房,则以男孩标志性的蓝色铺设,嫩蓝与女孩的嫩粉形成呼应。区别于女孩房间家具的留白,男孩空间柜体线条,更增加了一丝阳刚之气。
![]()
>>> 二女儿房效果图 <<<
二女儿房与另两个儿童房保持一样的色彩基调。特殊定制的上下床,可随孩子的成长而变换使用。半透明的纱窗,引光入内,使得整个空间开阔明亮。
三层主卧空间
The master bedroom
![]()
![]()
>>> 主人房效果图 <<<
主卧,属于成年人的审美意趣被展现的一览无余。山水、金色线条,无不透露着业主对于品质生活的追求。
作为整个空间的橙蓝点缀色依然活跃在这个空间中,细节处的装饰将看似平凡的生活打磨成充满深意的人生感悟。
![]()
项目地址 / Project address:广州·龙湖天宸原著二期
项目面积 / Project area:330㎡
设计单位 / Design units:广州仟玺国际设计
【团队人员】
客户经理 / Customer manager:韦珮莎
主创设计师 / Designer:曹珮璇
设计团队 / Design team:梁淑庆
主材设计师 / Product designer:柯锐昭?
设备工程师?/?Equipment engineer:崔俊伟
项目巡检 / Project inspection:许朋程
项目经理 / project manager:姚昌来
精彩评论