东易日盛:轻奢风格别墅装修设计

家对于我们来说是温馨的港湾,是疲惫身体与负重心灵得以休憩的地方。很多人认为别墅装修靠的是奢华、是富丽堂皇,其实不是,最重要的是业主喜欢,东易日盛为大家带来别墅装修设计——轻奢设计风格。

轻奢的设计风格强调的是一种对优雅、舒适生活的态度。轻奢在家居生活中越来越受到大众的喜爱,它成为一种对高品质生活细节的追求方式,与财富、地位无关。

设计理念

设计师在与业主紧密的沟通中,观点达到了高度的一致性。微妙的色调和金属原色互相映衬形成建筑统一的主题,明确的空间划分出不同的楼层,在生活中极具便利性与隐私性。

设计师在整体空间布局中,大到格局的设计,小到装置的摆设都充分尊重细节带来的感官感受,打造一片能让身体完全放松又感到无比舒适的温馨环境。

今天为大家分享的案例是位于武汉金地澜菲溪岸的轻奢风别墅,案例总面积400㎡,地上三层地下两层,明确的空间划分出不同楼层。下面一起来看看。

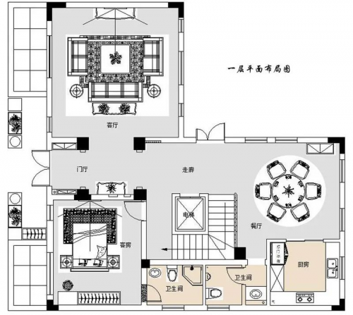
1

一层

东易日盛:轻奢风格别墅装修设计

一层主要为开放的公共区域,有客厅、餐厅、厨房、客房、卫生间。

别墅装修设计图纸

一层主要以开放的空间为主,客厅空间使用清新淡雅的象牙白护墙,顶面搭配时尚感超强分子灯,优雅里含蓄着奢华,奢华里蕴藏着优雅,营造出极具现代感的美学风尚。

古典不是故意做旧,而是由内而外呈现出那份极富艺术人文气息的迷人魅力。

2

二层

轻奢风格别墅装修设计

二层主要为公主房、书房、阳台、衣帽间、卫生间。

公主房并没有选用华丽的装饰去体现,而是用简洁有品质的家居去布局。轻奢风格并不是奢华,而是奢华的内涵,抛弃奢华的外在表现,使用轻度的体现,让其有内涵,而不张扬的装修风格。

3

三层

三层为主卧、衣帽间、儿子房间、卫生间

三层的主卧有宽敞明亮的落地窗,主卧选用了深棕色作为床头背景墙,搭配同色系的窗帘让视觉上有扩大的效果,简洁而不简单。

现代轻奢风格与时下流行的“轻硬装、重软装”的理念非常符合,硬装上面主打简约、线条流畅,不会过于浮夸,软装方面可以融入古典元素,来体现奢华贵气的感觉;

轻奢风格不需要过多的繁琐,在打造轻奢的过程中,非常注重居住体验,让家居看起来更温馨实用。

4

负一层

负一层为保姆室、客厅酒吧、酒窖、储藏室、洗衣房

负一层是主要作为家里的功能区域,整体用大理石、壁纸、纺织品、黄铜元素、镜面、丝绒、木饰品、瓷砖、皮饰等,其中木饰面元素具有温润自然的气质,用在现代空间恰到好处。

5

负二层

负二层主要以休闲娱乐室、影音室为主

负二层是家里的最底层,所以将休闲娱乐的空间设计在最底层,既可以方便日常使用也避免打扰到休息。地下二层的地板和其他的设计有所不同,负二层所有的地面全部都用了瓷砖地板,避免潮湿。

轻奢装修风格是把现代风和古典风完美的结合在一起,硬装会偏向现代风,家居和软装会有点古典风的元素,整体给人的感觉就是十分时尚、奢华、有品位。

装修设计因人而生,因人而动。东易日盛别墅装修设计主要是运用了别墅本身的特性以及业主的想法,在空间方寸之中融入细腻的观察与思考。

分享到:

相关推荐

评论 抢沙发

评论前必须登录!

 

精彩评论