胡宏坤 :以简驭繁,以境悦心 | 中央公园旁的意式生活美学范本

  当葱茏绿意漫过窗棂,当意式简约的优雅格调融入日常,重庆中央公园旁这套 160㎡跃层住宅,便有了超越物理空间的精神内涵。设计师以光影为笔、以自然为墨,在方寸之间擘画巧思,让三口之家的居住期许、对开阔通透的空间向往,以及对未来适老化需求的细腻考量,皆化作触手可及的生活质感 —— 中央公园・春溪云庐,一处让自然与生活共生、美学与实用相融的理想栖居范本。

image.png

设计哲思:以专业,回应生活本真需求

面对业主的核心诉求:两间套房与一间多功能房的功能配置、合理动线的规划、开阔通透的空间体验、充足的私密领域,以及适老化设计的融入,设计师以意式简约为基底,秉持 “减法美学,加法生活” 的创作理念,于细节处彰显专业,让设计真正服务于生活本质。


image.png


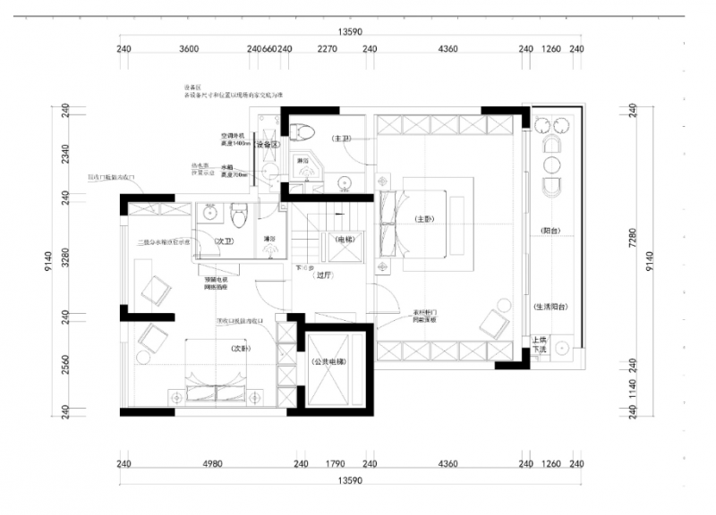
一楼平面布置图


image.png


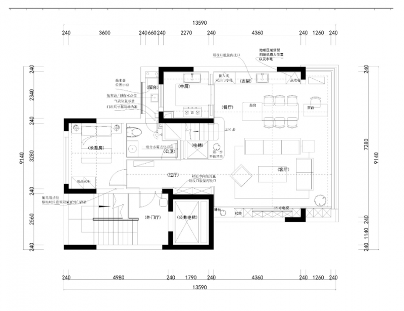
二楼平面布置图

色彩肌理,勾勒低调奢雅质感

摒弃冗余装饰,设计师以纯粹笔触诠释意式格调:米白、浅灰铺就空间底色,深棕、墨绿作为点睛之笔,色调温润而富有层次;天然大理石的细腻肌理、温润实木的原生触感、柔软布艺的亲肤质感,三者交融碰撞,沉淀出低调内敛的品质感。一字型沙发线条利落,黑色大理石茶几质感凝练,深绿色单人椅孤品点睛,每一件家具既是生活器具,亦是空间中的艺术陈设,让简约之中自有不凡格调。


image.png


963f67e239c82778c314f70dbf50b1f569e9a0acab78d.jpg


空间重构,让自然与居境相融


如何让居住空间与自然无缝衔接?设计师以空间重构之法,给出了完美答案。将原有阳台纳入客厅疆域,瞬间拓宽空间尺度,让视野愈发通透敞亮;创新采用 “大滑门作窗” 的设计理念,整面玻璃移门消弭室内外界限,屋外的葱茏绿意与澄澈天光无界涌入,让居者沉浸式感受自然馈赠,居住心境随之升华。


832d9accdf265a06bec1ebd3092310de69e99b4ea41ca.jpg


针对原始结构中电视墙旁的立柱,设计师并未刻意规避,而是以立柱厚度为基准,定制整体式收纳柜体,将结构缺陷转化为空间亮点 —— 柜体与墙面浑然一体,既丰富了储物功能,又让空间线条更显规整流畅,于细节处彰显化繁为简的设计智慧,让客厅整体感与实用性双双提升。


image.png

人文关怀,让实用与美学共生

考量到未来养老的居住需求,设计师专属定制观光电梯,不仅彻底解决跃层上下楼的便捷性难题,更以安全自主的设计保障老年生活品质。而观光电梯的设计,更让垂直交通成为移动的观景体验,窗外景致随视角流转,实用功能与美学价值在此完美统一。


image.png



f34d370941e9ba1554453120b95c0fc769e9a11ee6eed.jpg

收纳体系的巧思同样令人称道:玄关的隐藏卫生间,餐厅岛台暗藏隐藏式储物空间,主卧深棕隐形门与浅灰柜体形成视觉层次,让杂物隐匿于无形,空间始终保持整洁有序;动线规划兼顾效率与私密,各功能区互不干扰,让居住体验更显从容。

image.png

空间叙事:每一处场景,皆藏生活意趣

玄关浅棕实木门静立柔光之中,内嵌灯带映衬橙花与挂画,深浅色调交织,为归家之路铺就温馨序曲,对称线条勾勒出规整雅致的仪式感。设计师更在此暗藏巧思,以隐形设计打造嵌入式卫生间,既满足了入户临时使用的便捷需求,又保持了玄关空间的整洁统一,让实用功能与美学呈现无缝相融。

964824095846ae44de0940d2209b0a9569e99cdf2a8f2.jpg

餐厅浅咖色哑光橱柜与深棕木纹岛台形成和谐撞色,悬浮式吊柜搭配黑色金属收边,营造轻盈通透的视觉体验。天然大理石纹理墙面为背景,质感卓然;长条形金属吊灯与嵌入式灯组交织,洒下柔和均匀的光线,让用餐时光更具仪式感与雅致氛围。

86d0020c061367bc74f7a2203497609d69e99d3ede590.jpg

e98054155485834a355aa3c50134c49b69e99d7cbbf2d.jpg

faab39d9f34fe6139e845045bb4e474569e99d913b8ce.jpg

次卧:米棕色调为基底,床头背景墙分色设计搭配骏马装饰画,尽显沉稳大气;竹纹床品与墨绿色靠包注入自然生机,窗边休闲椅与脚踏构筑出惬意的阅读角落,让独处时光愈发自在舒心。


image.png

6a21040886d0e3d1d299b5cdf356ec6e69e99e30a8e8a.jpg

次卧书房:延续整体雅致基调,黑檀木书桌与旋转椅勾勒出现代简约线条,通透纱帘滤入柔和天光,博古架上陈列的摆件暗藏东方意趣,在光影流转间,演绎出内敛而富有层次的生活美学。

c5add672b98207f33bb7c088e30878be69e99e742886a.jpg

主卧以温润木色为基底,水墨纹理背景墙如流动的诗意画卷,与床品的蓝金点彩纹样交织出东方韵味。悬浮式床头柜与皮质床尾凳线条利落,深棕隐形门与浅灰柜体形成层次递进,墨绿色单人椅点睛其间,在静谧光影中沉淀出雅致从容的生活格调。回归居住本质,设计师打破卧室与衣帽间分离的传统布局,将二者通透融合,在卧室两侧墙面定制对称式衣帽储存空间,实现空间的相互借用与高效利用。这一设计不仅让卧室视觉尺度大幅拓宽,更让衣物收纳、取用愈发便捷从容。



image.png

af8286258297d1e1e8c5b0bc0f87900b69e99ea2eef36.jpg

让家,成为诗意栖居的容器

真正的高阶设计,从来不是风格的刻意堆砌,而是对生活本质的深刻洞察与温柔回应。在这套 160㎡的意式跃层空间中,设计师以 “减法” 勾勒美学轮廓,用 “加法” 填充生活细节:让中央公园的自然诗意穿透玻璃,让适老化的人文关怀藏进电梯,让每一处收纳都贴合日常所需,让每一种色调都抚慰心灵。

这里没有繁杂的装饰,却有简约中的奢雅质感;没有刻意的雕琢,却有空间与生活的完美契合。中央公园的自然灵韵与意式简约的优雅格调在此共生,三口之家的实用需求与老年成员的舒适考量在此平衡 —— 这便是设计的终极意义:让家不止是居住的物理空间,更是沉淀时光、安放情感、滋养心境的诗意栖居之地,让每一位居者都能在光影流转中,遇见生活最本真的美好。


作品信息》》

楼盘名称 |中央公园—春溪云庐户型

面积 | 160㎡设计风格 | 意式简约

设计总监 | 胡宏坤

设计机构 | 兄弟装饰LD高端设计


147973670fce6acf6656e3cfed69c3ab69e9a27623fc3.jpg




分享到:

相关推荐

评论 抢沙发

评论前必须登录!

 

精彩评论