所谓理想生活
大抵就是能在闲暇的时候静下来
满园的绿意、拾阶而上
没有外界的嘈杂
内观于心,外观于身
慢下来,享受生活点滴给予的滋润
这原本是一个度假别墅
青岛的海风、晚霞......
一景一物,给予生活更多的雅致
家,是生活的承载
亦传承东方新韵,成就另一种田园生活......
![]()
1、家之天地 静看风景
该别墅坐落于青岛藏马山旅游度假区内,是一座中式院落的别墅群,对于属马的男屋主来说,他钟情于中国园林,于是把此套别墅作为解压放松的度假休闲之地,请来设计师韩木为其设计,整个别墅设计之后变为了一座“隐居”之地,正所谓“东方雅趣,诗意之魂”。
![]()
![]()
生活中男主人闲暇之余,他将生活的热情投注在自己喜欢的茶艺、收藏、书法和旅行中,或是打理院中的花花草草;从室内到室外,东方设计里的“仪式”将中国的文人之韵蕴涵在空间,结合当代设计表达丰富而细腻的东方美感。
整个一层为生活区,与室外园林相互借景,移步一景,连贯又断续的景别,让人置身于朦胧的艺术境地,迂留其中思度人生 ......
![]()
落地玻璃窗和中式花式窗棂组合,既连接室外自然风景,又将东方设计与现代时光串联起来,好像是一首叙事的抒情诗,花景、阳台、石子......在沉静与雅致的意境里,让生活衍生出不同的体验,每一种皆是幸福。
室内以灰色系为主,造景取舍里传承东方设计讲求的对称之美,但是设计师韩木通过巧妙的设计技法,从色彩、配饰、陈列等整个空间美学体系,以和谐、端秀、恰如其分的表达生活应有的态度。
![]()
![]()
与院子的岩石相映成趣,开阔通透的空间,在开放式布局中将客餐厅结合起来,不论是闲坐、用餐皆是一种放松;在这个以简约为主的空间里,沙发、茶几、单椅等,皆与庭院形成一种互动,抬眼是如花,居家则是静谧。
![]()
设计不仅是空间元素的任意组合,更是细节之处的推敲,正如一层的会客室虽然充斥着现代元素,但因为东方之韵的流动,你会深受东方艺术的熏陶,朝着端景台望去,便有一种“山色空蒙雨亦奇”的江南意境。
![]()
从某种意义来说,家是每个人的归宿,而设计则是一种精神内化之后的诠释,如果说这个家是雅致的,倒不如说在这里生活会让人从内而外地感受到诗情画意,闲暇时刻,主人的生活状态便是闲适、淡然。
![]()
![]()
2、诗茶闲坐 一切皆淡
青岛的海风温柔,家也娴雅,正如手捧一杯茶,平心静气就是最佳的状态;在茶室的设计上,折射出“慢”的生活态度,对设计师韩木来说,设计就是最大程度地还原日常生活,“围炉而坐,茶香诗意”传递给屋主未来生活最大的热情。
![]()
茶室是一个开放式的自由空间,在这里可以享有独处的自由。烹茶、修剪绿植、约好友聚会,某种意义上都是对慢生活的再次解读。
![]()
![]()
在茶室里,一瓷一器,以精致的方式与日复一日得以悉心照料的绿植相映衬,尽显东方茶室的禅静;屋主收藏的茶器、边柜散发出的木香,在这个东方茶镜的空间里,注入了对生活的用心与热爱,让时光慢煮,写照着优雅。
![]()
3、居于此乐于此 精神栖息之所
既然是屋主的私密生活空间,整个空间的布局都围绕着悠闲、舒适而展开,结合屋主对中国传统建筑的喜爱,从人字形吊顶、简素的设计到组合柜体的序列,形成空间层叠的艺术梦境,呈现出了另一种行云流水的美学张力,时间在这个空间里,缓慢流淌。
![]()
整个卧室中式以建筑设计为基础,大面积地采用柔和的灰色与木色,常见的材料,力求保留着中式最原始的质感,却以简化的方式传递现代居所应有的宁静。
![]()
在这里,一切元素都与东方艺术、自然相连,阳光进来的时候,就是新的开启。
![]()
另一个卧室与庭院直接相连,设计中最大程度地保留了与户外的关系,将自然风景框入视线之内,素雅的氛围勾勒出轻盈的观感,这大抵就是东方新韵。
设计师打破了原有的结构关系,将每个卧室空间规划出一个自然之境,在日常的每一天生活皆有呼吸感,壁布、实木、皮革、金属、陶瓷等细腻而纯粹的材质使用,消弭了硬质的界限,奠定了典雅的精神栖息之所。
![]()
4、自然之美 热情生长
“云想衣裳花想容,春风拂槛露华浓”,一方院落的自然之景,好似雨落时会有回响,层次高低错落、姹紫嫣红的植物被修剪出不同角度的美。不管是从室外看室内,还是透过一整面墙的玻璃落地窗,不同景致的互动,是岁月无法抗拒的美。
![]()
![]()
在设计师韩木看来,空间秩序的背后是生活的秩序,是由人的行为、物品之间的关系决定的,私宅设计是发现生活之美,将屋主对生活热爱倾注于空间之内,形成其赏心悦目的生活方式。
![]()
![]()
也许,生活的表达从来不止一种,自然之美是无声的艺术,游走在此,看着时间更替,生活的诗意所滋养......
![]()
项目名称:阿朵小镇
项目地址:山东·青岛
设计面积:联排别墅
项目总造价:60万
庭院设计:绿澜景观
摄影:冠筑摄影
项目风格:自然主义
主要材料:仿岩石瓷砖、原木地板、仿丝壁纸
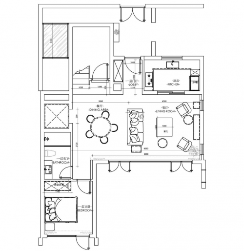
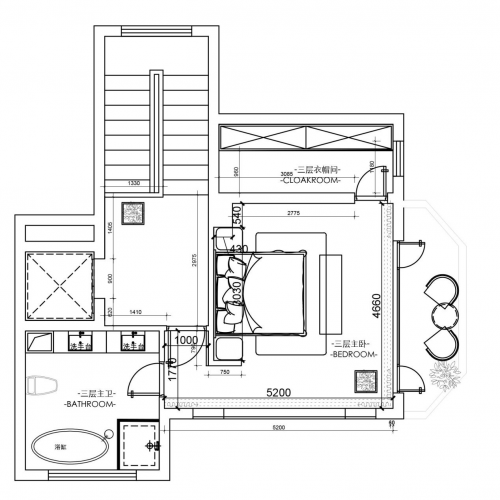
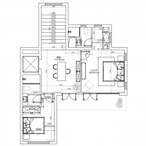
关于项目平面布局图
![]()
一层平面布局图
![]()
二层平面布局图
![]()
三层平面布局图
关于项目设计师
![]()
设计总监:韩木
韩木空间艺术设计工作室
中国建筑装饰协会注册高级室内建筑师
陈设艺术设计师
教育背景:
米兰理工大学国际奢华酒店设计和设计管理研究生,曾于清华大学美术学院、欧洲设计学院以及日本东京大学等专业院校研修学习。
精彩评论